H o m e
  • A r c h i
  • D e s i g n
  • S c e n o
  • S k i l l s
  • C o n t a c t

EU FORUM 2022 & 2023

 

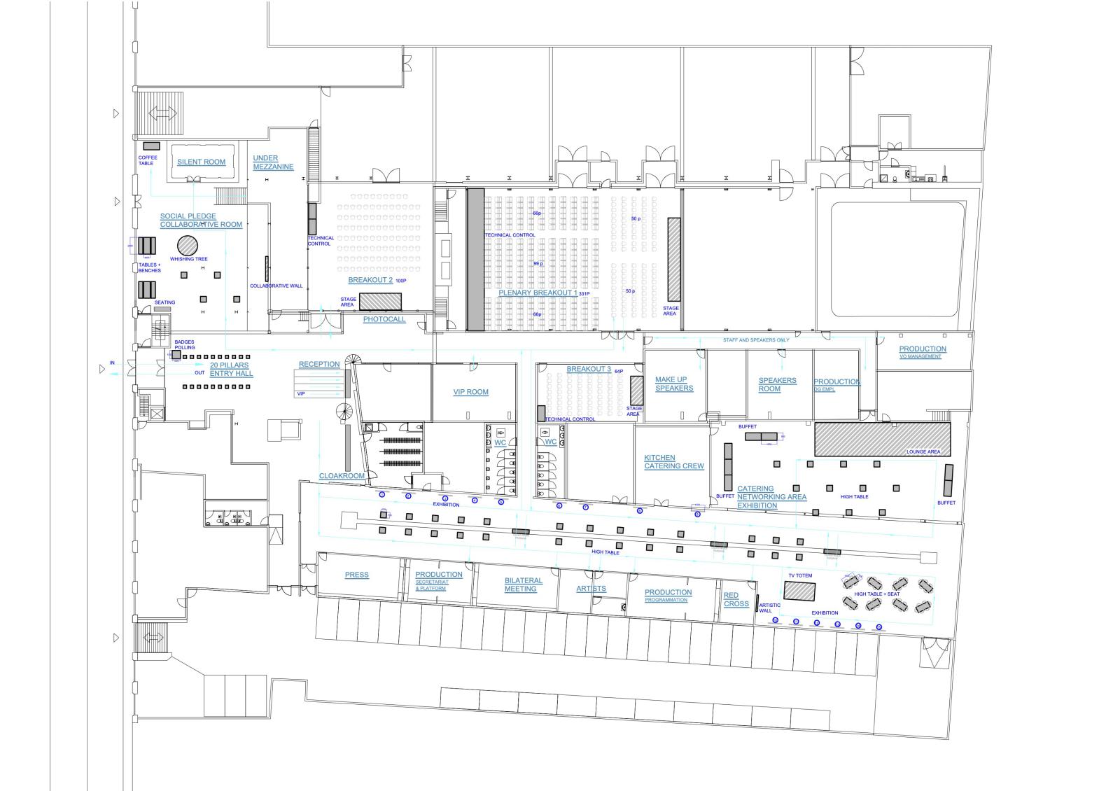
Produced 2D drawings and 3D visuals supporting an institutional event presentation for VO Groupe.

2022

2023