H o m e
  • A r c h i
  • D e s i g n
  • S c e n o
  • S k i l l s
  • C o n t a c t

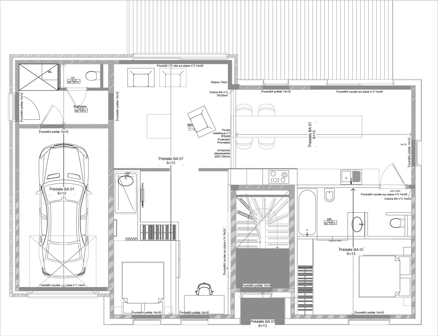
PRIVATE BRAGARD

 

Interior design of a new construction house with 3 levels. 3D and 2D presentation & plans for the client and contractor’s specifications.

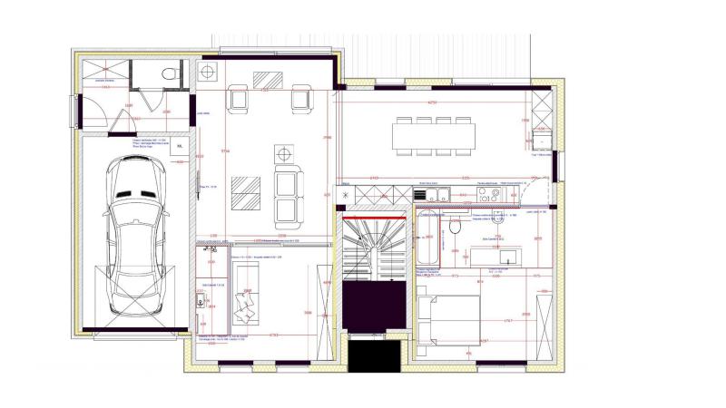
Below, you can see two design proposals for the ground floor, the client chose the one on the right.